INTERIOR DESIGN ONLINE
Architectural interior space design for residential and commercial projects.
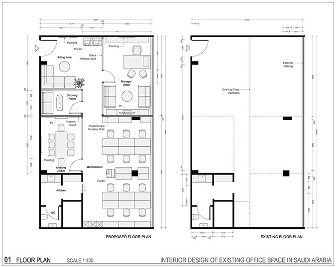
Clear layouts, functional planning and spatial logic.
The service is provided online, for projects across Greece and abroad.
REQUEST A QUOTE
WHAT I OFFER
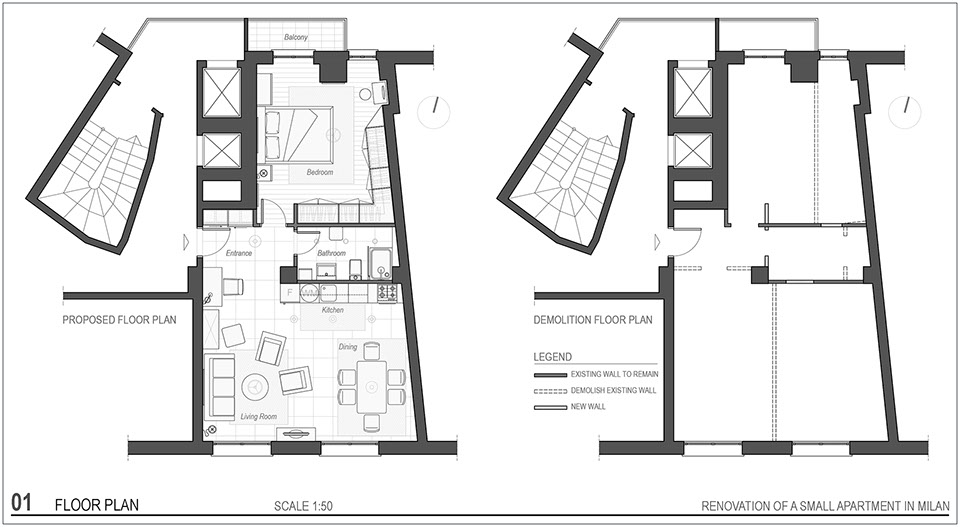
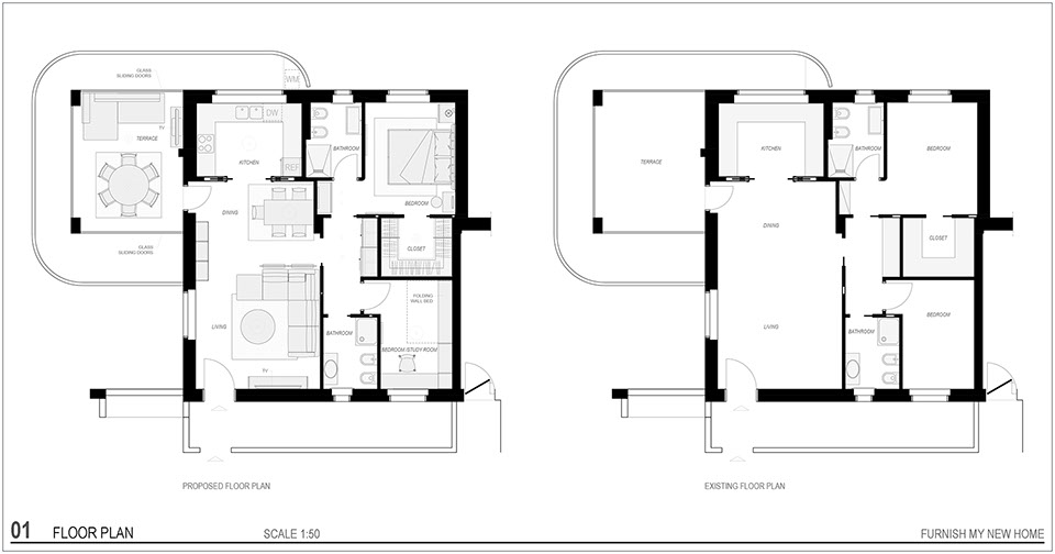
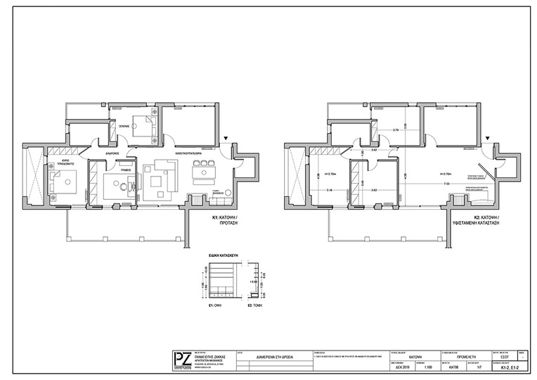
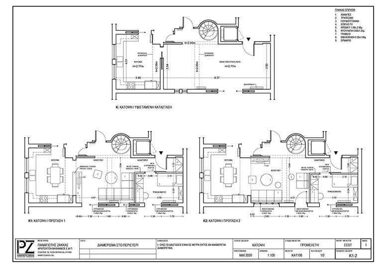
- new architectural floor plan (reorganisation of spaces)
- simplified 3D model for spatial understanding
- mood board of aesthetic direction
- indicative budget of works
WHO THIS IS FOR
- renovations involving layout changes
- apartments that require a new floor plan
- clients seeking an architectural solution, not decoration
WHAT IS NOT INCLUDED
- furniture selection (shopping list)
- detailed selection of colours and materials
- decorative proposals
HOW THE PROCESS WORKS
- You complete the contact form
- I review your request and basic project data
- You receive a quote via email
- Upon acceptance, interior design begins
The collaboration is carried out online.
REQUEST A QUOTE FOR INTERIOR DESIGN
Fill in your details by clicking the button below.
You will soon receive a quote for interior design.
CONTACT FORM